广西河池三层自建房

项目介绍 Project introduction

项目名称:河池自建房

设计风格:新中式风格

竣工时间:2019年10月

项目地址:广西省河池市

产品应用:美林汇集成墙板

 

案例展示 Case show

一楼户型图

广东美林汇集成墙板自建房别墅案例

广东美林汇集成墙板自建房别墅案例

广东美林汇集成墙板自建房别墅案例


二楼户型图

广东美林汇集成墙板自建房别墅案例

广东美林汇集成墙板自建房别墅案例

广东美林汇集成墙板自建房别墅案例

广东美林汇集成墙板自建房别墅案例

广东美林汇集成墙板自建房别墅案例

广东美林汇集成墙板自建房别墅案例

广东美林汇集成墙板自建房别墅案例


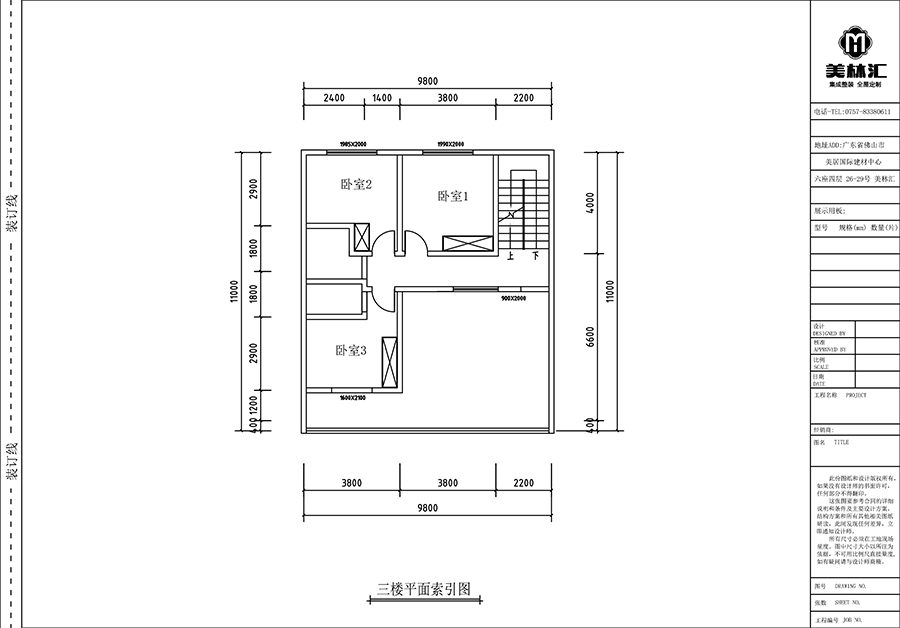
三楼户型图

广东美林汇集成墙板自建房别墅案例

广东美林汇集成墙板自建房别墅案例

广东美林汇集成墙板自建房别墅案例

广东美林汇集成墙板自建房别墅案例

广东顾的新材料科技有限公司

联系电话:18807655226

邮箱地址:2774105525@qq.com

联系地址:广东省佛山市禅城区美居国际建材中心6座4楼22-24(美林汇营销中心)

版权所有:广东顾的新材料科技有限公司                 备案号: 粤ICP备2020106991号

美林汇 扫一扫联系我们
美林汇

统一服务热线

400-883-8391